|
|
|
||||||||||||||||||||
高架下ベースキャンプ |
||||||||||||||||||||||
|
||||||||||||||||||||||
|
||||||||||||||||||||||
|
||||||||||||||||||||||
|
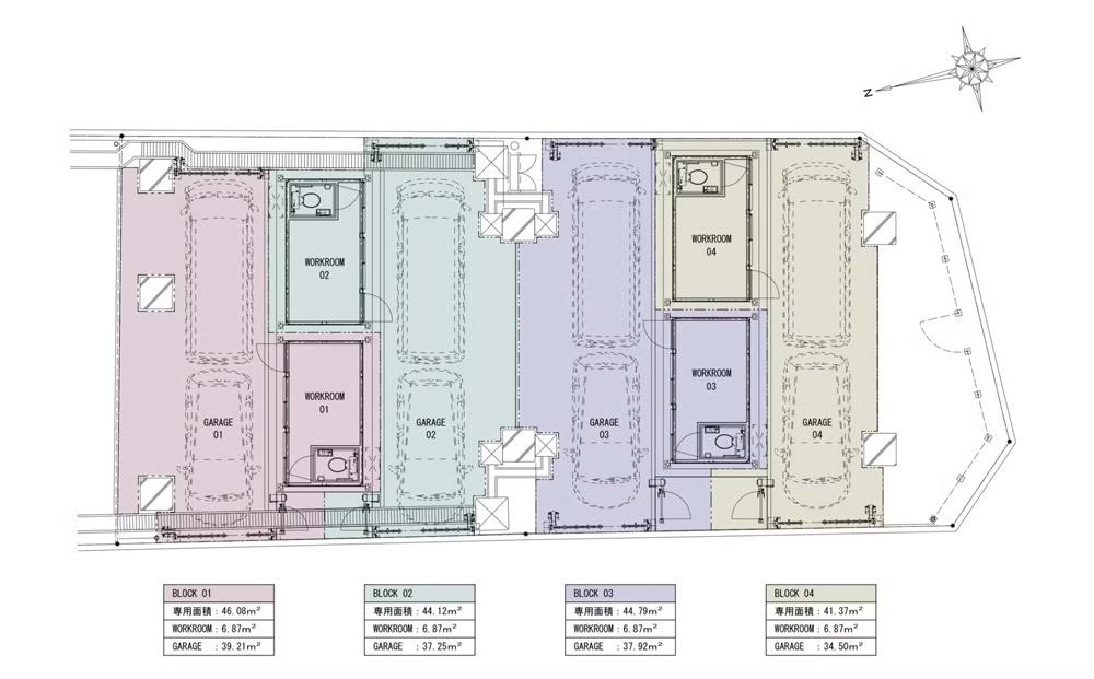
鉄道高架下という、なんともワクワクする土木構造物。高架の下といえば、これまでは駐車場や公園として活用されたり、時には飲食店舗として活用されたり。 今回紹介するのはそんな高架下の新しい活用方法の一つ。全天候型のガレージ付きスモールオフィスです。 JRおおさか東線と近鉄大阪線が交わる俊徳道駅付近の高架下。コンテナでつくられたスモールオフィスと最大で2台の車が停められる駐車兼作業スペースで構成された区画。 スモールオフィスは7㎡弱、1人で使うのには必要十分なサイズ感。内装・家具付きのセットアップなので、準備いらずで、入居してすぐにスタートできます。 駐車兼作業スペースも車2台分。高架下で雨に濡れないというのが、助かるところ。1台は駐車して、残りの1台は来客用もしくは作業スペースなど色んな使い方が想定できます。 ガレージを2台分借りるだけでもそれなりにコストがかかるのに、セットアップされたオフィスもついてくる。なんだかお得な気がしてしまいます。 小規模なオフィスを探している方にはもちろん、愛車を愛でる場所として、また自宅から溢れてしまいそうな趣味のものを格納する場所としても。 軽作業可能、駐車場付き、郊外だと特に無かった小規模でデザインされたオフィス。なんとも痒いところに手が届く物件、こんなところを探していたという方もいるのでは。 とりあえずオフィスビルに入居するわけでもなく、自宅でなんとなく仕事を続けるでもなく、高架下にベースキャンプを構える。そんな拠点として、いかがでしょうか。 *24時間事務所使用可 *安心快適パック(ALSOK+高速ネット回線):税別6,900円 *セットアップオフィス(自身で好みの家具を置くこともできます) *3月中の申し込みで1ヶ月分フリーレント |
![]() |
|
| スモールオフィスは7㎡弱、1人で使うのには必要十分なサイズ感。 |
|
| 内装・家具付きのセットアップ。スタイリッシュな照明と内装。 |
|
| このコンパクトさを探していた方も多いのではないでしょうか。 |
|
| 全天候型、車2台分の駐車兼作業スペース |
|
|
| 賃料 | 7万9,800円 | 専有面積 | 41.37㎡~46.08㎡ |
| 敷金 | なし | 礼金 | 2ヶ月 *契約事務手数料 |
| 償却 | なし | 管理費 | なし |
| 所在地 | 東大阪市俊徳町2丁目 | ||
| 交通 | JRおおさか東線・近鉄大阪線「俊徳道」駅 徒歩3分 | ||
| 建物構造 | 所在階 | ||
| 築年 | 2026年 | 取引態様 | 媒介 |
| 設備 | 電気/水道/洗面台/トイレ(洋式)/エアコン | ||
| 備考 | 即入居可/記載の賃料、礼金は税別/記載の面積はWORKROOMとGARAGEを合計したグロス面積/駐輪場/バイク置場/敷地内駐車場/24時間事務所使用可/店舗利用可(飲食は不可、業種要相談)/賃貸借保証委託契約必須(全保連株式会社。初回保証委託料:総賃料の100%、年間保証委託料:10,000円/1年)/バイク置場あり/駐車場あり/1階・路面/新築 | ||
| 情報修正日時 | 2026年3月11日 | 情報更新予定日 | 2026年3月27日 |
〒530-0043 大阪市北区天満2丁目6-20 Tel 06-6443-1350
宅建業免許番号:大阪府知事(6)第46315号
あなたにおすすめの物件


