|
|
|||||||||||||||||||||
寄り・どり・みどり |
||||||||||||||||||||||
|
||||||||||||||||||||||
|
||||||||||||||||||||||
|
||||||||||||||||||||||
|
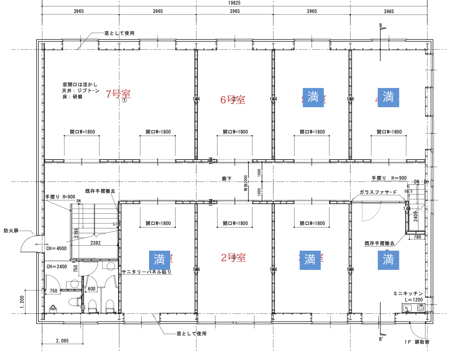
元々は、住居兼工場だったという大きな建物。 「MIU kitakagaya(ミュー北加賀屋)」として生まれ変わったその建物には、シェアスタジオやデザイン事務所、ヴィンテージ家具店、Tシャツのセルフプリントのショップが入っています。インダストリアルなハコにカラフルな商品がズラリ並ぶ様子や、個性的なフォルムが溢れんばかりに並ぶ様子は壮観で、ワクワクさせられます。ほど近くには、最近オープンしたSDGs複合施設「SMASELL Sustainable Commune(スマセルサステナブルコミューン)」が。徒歩1分の距離なので、訪れる人がお互いを周れるような施設になれば素敵です。 白が眩しい外装には、アーティストのumao氏によるウォールアートも。 北加賀屋のまちコラムもご参考ください。 下町感のある日常にアートが溶け込むカオスな街【まちコラム_北加賀屋】早速、よりどりみどりの区画たちをご説明します。 【区画①】 こちらは約40坪の、大きなスケルトン区画です。とにかく自由な広いスペースが欲しい!という人にはうってつけの空間。スケルトンなのに、トイレを希望位置(一定の制限はありますが)に設置してもらえるという嬉しいお知らせつきです。 物販、教室などを歓迎します。この大きさなので、人がたくさん集まる空間になったらきっと楽しいです。 【区画②,③】 大階段の先に、教室のように並んだレインボーの扉たち。全部で7つの区画がありますので、広さや窓の向きも考慮に入れつつ、好きな色のお部屋を選んでください。すでにエアコンも設置されていて、ボードで仕上げてありますので、手を加えるもよし、加えなくてもこのままお店が始められます。手頃な賃料で自分のとっておきの商業空間がほしい人にはこちらがおすすめ。 *11/20追記 現在の空き区画は6、7号室です。 【区画④】 路面区画もございます。こちらの並びに、ヴィンテージ家具店、Tシャツのセルフプリントのショップが入っていますので、この2つに挟まれてしっくり来る業種……我こそは、という方をお待ちしています。衣食住、という観点で言えば、飲食店が入ればコンプリートですね…!(ただし重飲食は不可です!) さあ、あなたにピッタリの区画は見つかりましたか? ー各区画条件ー 【区画① 西棟2階】 面積:40坪 賃料:200,000円(税抜) 共益費:なし 保証金:2,400,000円(賃料の12か月分。保証会社加入の場合、3か月) 定期借家契約(年数応相談、再契約可) 【区画② 東棟2階 2、6号室】 面積:7坪04 賃料:35,200円(税抜) 共益費:2,500円(税抜) 保証金:211,200円(賃料の6か月分。保証会社加入の場合、3か月) 定期借家契約(年数応相談、再契約可) 【区画③ 東棟2階 7号室】 面積:13坪67 賃料:68,350円(税抜) 共益費:5,000円(税抜) 保証金:410,100円(賃料の6か月分。保証会社加入の場合、3か月) 定期借家契約(年数応相談、再契約可) 【区画④ 1階 B区画】 面積:17坪17 賃料:85,850円(税抜) 共益費:5,000円(税抜) 保証金:1,030,200円(賃料の12か月分。保証会社加入の場合、3か月) 定期借家契約(3年〜、再契約可) 飲食可(重飲食不可) *事務所用途のみでの利用不可。
|
![]() |
|
| 階段もインパクト大です |
|
| 区画① 40坪のスケルトン |
|
| 人が集まる空間になって欲しい! |
|
| 区画②,③ 教室のような7つの部屋たち |
|
|
| >>大きな地図で見る  |
| 賃料 | 3万5,000~20万円 | 専有面積 | 23.27㎡~132.23㎡ |
| 敷金 | なし | 礼金 | なし |
| 償却 | なし | 共益費 | 《共益費・保証金についてはコラム参照》 |
| 所在地 | 大阪府大阪市住之江区北加賀屋5丁目 | ||
| 交通 | 大阪メトロ四つ橋線「北加賀屋」駅 徒歩6分 | ||
| 建物構造 | 鉄骨造 3階建て | 所在階 | 1,2階 |
| 築年 | 1965年 | 取引態様 | 媒介 |
| 設備 | 【区画① 西棟2階】 電気:専用メーター ガス引き込みなし 水道:専用メーター トイレ:希望位置に設置予定 インターネット:必要な場合開通工事要 【区画②③ 東棟2階】 電気:子メーター ガス・水道引き込みなし エアコンあり 【区画④ 1階 B区画】 電気:専用メーター 水道:専用メーター ガス引き込み可 エアコンあり トイレ・ミニキッチンあり | ||
| 備考 | 定期借家契約(期間:再契約可、年数は区画により異なる)/現状有姿で引渡し/記載の賃料、共益費、礼金は税別/宿泊施設利用不可/連帯保証人必須、ただし保証会社利用の場合は不要/火災保険必須/リノベーション工事(2024年) 【区画① 西棟2階】 定期借家契約(再契約可、年数応相談) 1階専用入り口はタイマーで9:00~22:00オープンのため、時間制限有り。なお、調整可。 【区画②③ 東棟2階】 定期借家契約(2年、再契約可) 24時間営業可能 【区画④ 1階 B区画】 定期借家契約(5年、再契約可) 飲食可(重飲食不可) 24時間営業可能 /1階・路面 | ||
| 情報修正日時 | 2025年10月11日 | 情報更新予定日 | 2026年1月30日 |
〒530-0043 大阪市北区天満2丁目6-20 Tel 06-6443-1350
宅建業免許番号:大阪府知事(6)第46315号
あなたにおすすめの物件


