|
|
|
||||||||||||||||||||
商店街の気になる路地【中津で店をやらないか?】 |
||||||||||||||||||||||
|
||||||||||||||||||||||
|
||||||||||||||||||||||
|
||||||||||||||||||||||
|
かつてのシャッター街の印象から少しずつ変わり始めた「中津商店街」。そんな商店街の路地裏に、今回紹介する長屋はあります。 外観は昔ながらの風情を残しつつ、中は潔いスケルトン。内装が綺麗に整えられた物件もいいけど、自分の発想で世界観を作り上げられる、そんな物件を待っていたという方も多いのではないでしょうか。 建物はかなり年季が入っています。修繕が必要な箇所もあり、どこまで手を入れるかは借主次第。すぐにピカピカの状態で営業したい方には、少し根気が必要。 この建物の古さを楽しんでくれる方に届いてほしいです。 そして、トイレがない点にも注意!水道・ガスが現状引き込まれていないので、事業内容によっては工事が必要になります。 長屋を使って何かを始めたい方へ。中津商店街の路地裏で、あなたの世界を作ってみませんか。 (佳奈美) --------------- 【中津で店をやらないか?】シリーズ 梅田の隣。どこか懐かしい風景が残る街、中津。 ここ数年、この街の風景に溶け込むように新しいショップや飲食店が少しずつ増え、街全体が活気を取り戻しています。 そんな中津で見つけた、魅力的な事業用物件を紹介していきます! ▼中津にショールームがある、toolboxさんのコラム。中津の魅力が詰まっているので、ぜひ読んでみてください。 〈toolboxショールームがある街、大阪・中津。ランチ、カフェ、酒場…スタッフのおすすめスポットを総まとめ!〉▼中津マップもわかりやすい! 〈toolboxおすすめNAKATSU MAP〉--------------- ※事業用物件(賃料・共益費・礼金に消費税がかかります) ※定期賃貸借契約ですが、入居1年後3ヶ月前の予告で中途解約可能。 ※連帯保証人必須 ※現状渡し。全ての設備(電気配線など)は残置物の為、修理交換は借主様負担。建物の主要構造部(柱、梁、屋根、防水)のみの修繕は貸主負担。 ※改装の内容は貸主に要確認 |
![]() |
|
| 物件はこの路地から。 |
|
| 今回テナント募集をしている長屋。クリーム色がかっていて、目をひく外観です。 |
|
| 路面に大きな引き戸。 |
|
| 内装は自分次第。 |
|
|
| >>大きな地図で見る  |
| 賃料 | 12万5,000円 | 専有面積 | 59.50㎡ |
| 保証金 | 1ヶ月 | 礼金 | 2ヶ月 |
| 償却 | なし | 管理費 | なし |
| 所在地 | 大阪府大阪市北区中津3丁目 | ||
| 交通 |
阪急神戸本線・宝塚本線「中津」駅 徒歩4分 大阪メトロ御堂筋線「中津」駅 徒歩8分 |
||
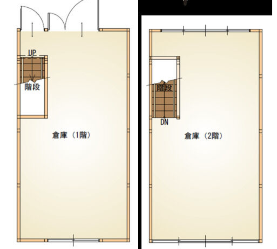
| 建物構造 | 木造 2階建て | 所在階 | 1-2階 |
| 築年 | 築年不詳 | 取引態様 | 媒介 |
| 設備 | 電気(専用メーター)/水道・ガス引込なし | ||
| 備考 | ペット不可/募集戸数:1戸/7年の定期建物賃貸借契約(入居1年後3ヶ月前の予告で中途解約可能)/現状有姿で引渡し/引渡し時期相談/記載の賃料、共益費、礼金は税別/各階面積(1F:29.75㎡、2F:29.75㎡)/店舗利用可(事業内容要相談)/宿泊施設利用不可/連帯保証人必須/賃貸借保証委託契約必須(日本賃貸保証(JID) JID 初回:80% 更新:2.5% /月)/指定保険必須(あいおいニッセイ同和損保 5年契約(別途見積))/決済サービス料:330円(月額)/1階・路面 | ||
| 情報修正日時 | 2026年4月16日 | 情報更新予定日 | 2026年4月30日 |
〒530-0043 大阪市北区天満2丁目6-20 Tel 06-6443-1350
宅建業免許番号:大阪府知事(6)第46315号
あなたにおすすめの物件


