|
|
|
||||||||||||||||||||
使い続ける幸福感 |
||||||||||||||||||||||
|
||||||||||||||||||||||
|
||||||||||||||||||||||
|
||||||||||||||||||||||
|
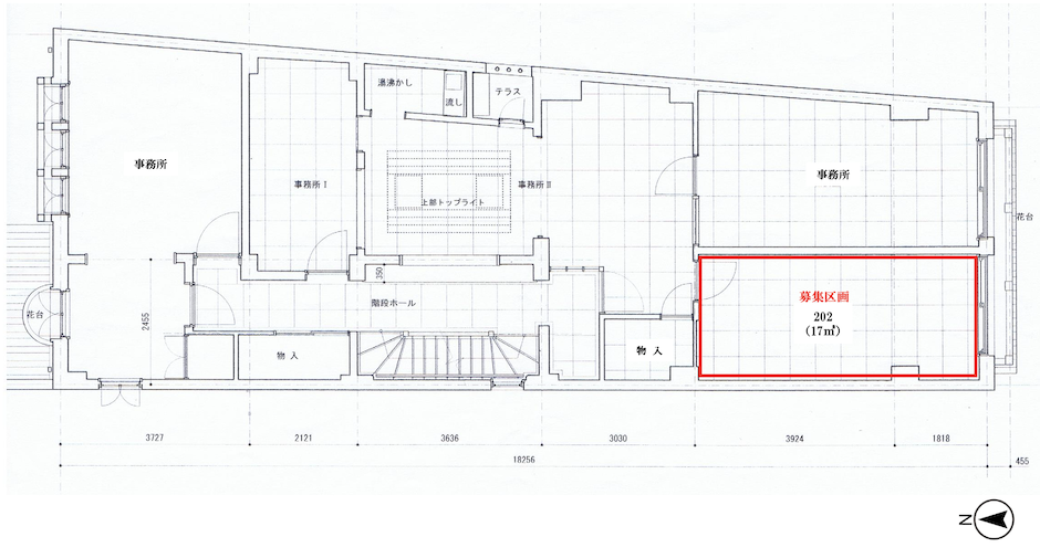
イケフェス大阪でも毎年多くの人が訪れる船場・中之島エリア。ここには魅力的な近代建築が数多く残っており、生きた建築ミュージアムと呼ばれるのも納得。 この建物も1935年(昭和10年)に建てられた歴史ある建物で、2007年に登録有形文化財に指定されました。 元は個人宅として建てられたこの建物。だからなのか、建物の中に入れば目に留まる一つ一つの風景に温かみや懐かしさを感じ、まるで心をくすぐられるような感覚になります。 外から眺めると窓がとても印象的だと感じる方も多いはず。歴史あるディテールが威厳ある存在と感じる人もいれば、可愛らしいと感じる人もいるかもしれません。 ビルと呼ばれる中でも、訪れる人の緊張感をほぐしてくれるような感覚や、眺める人それぞれが自由に感じてもいいと思わせてくれるような包容力を、この建物からは不思議と感じることができます。 当時の用途から時とともに変化し、現在はオフィスや会議室、本格的な音楽レッスンホールなど、日常的にも街や人々に開かれた建物となりました。 またこのビルの素敵だなと感じるところは、新築当時のオリジナルの良さは残しつつ、共用トイレなど水回りはきちんとリフォームがされていること。老若男女さまざまな人たちが訪れるこのビル。古さが不便に感じるところには、必要な手入れがされています。 想像してみてください。もし、あなた自身がこのビルを使い続けていくことや、あなたのお客様がこのビルを訪れたときのことを。気持ちよく使いやすい場所だったら、きっと嬉しいですよね。 人を受け入れて、人が使い続けることで建物の保存と歴史を継承していく。建物にも使い手にも、幸せなかたちになるように・・・。ビルを守り続けてきたオーナーの思いが垣間見えるような気がします。建物から感じる包容力はこの思いが影響しているのかもしれません。 今回は2階の1区画の募集です。近代建築にオフィスを構える、こんな貴重な機会はなかなか訪れないもの。部屋はきちんと改装され、新たな使い手を待っています。 建物から使い手へ、使い手から建物へ。 お互いに幸福感を分かち合うような日常をここで過ごしてみませんか。 ※セキュリティの都合上、日曜・祝日の内見不可 ※飲食店不可 ※貸主の業種審査あり ※連帯保証人必須 ※エレベーター無し ※24時間事務所使用可 ※室内・建物内禁煙 ※インターネット引き込み工事・利用等にかかる費用は借主負担 ※電気代別途請求 ※記載の賃料、解約時控除金は税別 |
![]() |
|
| さりげなくステンドグラスが使われています。 |
|
| 1階エントランス。レトロな照明が目を引きます。 |
|
| エントランスドアのハンドルが陶器製で素敵です! |
|
| 歴史のある建物だからこそのデザイン。築浅ビルにはない魅力です。 |
|
|
| >>大きな地図で見る  |
| 賃料 | 9万円 | 専有面積 | 17㎡ |
| 保証金 | 6ヶ月 | 礼金 | なし |
| 償却 | 保証金の20% | 管理費 | 賃料に含む |
| 所在地 | 大阪市西区江戸堀1丁目 | ||
| 交通 |
大阪メトロ四つ橋線「肥後橋」駅 徒歩1分 大阪メトロ御堂筋線「淀屋橋」駅 徒歩8分 |
||
| 建物構造 | 鉄筋コンクリート造 地下1階付き 3階建て | 所在階 | 2階 |
| 築年 | 1935年 | 取引態様 | 媒介 |
| 設備 | 電気(子メーター)/ガス給湯(共用湯沸かし室)/共用湯沸かし室/共用トイレ(1階:男女別、3階:男女共用、洋式、1階:暖房便座、3階:温水洗浄便座)/エアコン/エレベーター無し/常時オートロック(日曜、祝日)、夜間オートロック(月~土曜18:00~10:00)※状況により異なる場合があります | ||
| 備考 | ペット不可/1年未満の早期解約時違約金有(総賃料の3ヶ月分)/解約予告3か月前/即入居可/記載の賃料、解約時控除金は税別/解約時控除金は保証金の20%/共用屋上/駐輪スペース(無料)/バイク駐車スペース(無料、車種は要相談)/24時間事務所使用可/室内・建物内禁煙/連帯保証人必須/登録有形文化財/要火災保険契約 | ||
| 情報修正日時 | 2026年2月24日 | 情報更新予定日 | 2026年3月11日 |
〒530-0043 大阪市北区天満2丁目6-20 Tel 06-6443-1350
宅建業免許番号:大阪府知事(6)第46315号
あなたにおすすめの物件


