|
|
|||||||||||||||||||||
再び商う、明治の問屋 |
||||||||||||||||||||||
|
||||||||||||||||||||||
|
||||||||||||||||||||||
|
||||||||||||||||||||||
|
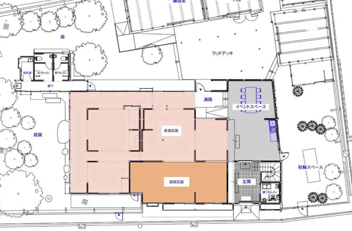
江戸時代には東海道五十七次最後の拠点として、大阪と京都をつないでいた「京街道」の宿場町、守口宿。そんな歴史の面影を今に伝える、「旧徳永家住宅」という元々問屋だった建物が複合商業施設として再生されました。 母屋を中心として土蔵やガレージなども活用したショップや貸し農園等を併設した「燈森(ともり)」。今回は母屋の1Fという施設の顔であり、最後のピースとなる区画の募集です。 約100㎡の客席スペースに、約35㎡の厨房スペースで構成された飲食店舗向けの区画。既存の間取りや縁側などのしつらえを残しつつ、部分的に天井を抜いたりと伸びやかな空間。 太い梁や年月を刻まれた建具、縁側の外側に間口いっぱいに広がる庭園など、積み重ねられた歴史の風格があります。建物自体が雰囲気を持っているので、それを活かしながら世界観を作っていけるのが魅力です。 日常使いのカフェに、特別な日に利用するレストランなど。料理だけでなく、この空間を含めた体験自体が話題になりそうな予感。 上級商人の問屋として明治初期に建てられたとされており、築150年にもなる歴史的建造物。商業施設の一員として、守口やこの施設を盛り上げたいという方をお待ちしています。 *旧徳永家住宅・ポップアップショップについては公共R不動産の記事もご覧ください 「“歴史的遺産を地域コミュニティの核に” 旧徳永家住宅の活用サウンディング実施中!“@大阪府守口市」*業種審査有り *定期賃貸借契約の期間等の条件は応相談
|
![]() |
|
| 天井を取っ払った開放的な空間 |
|
| 元のしつらえが部分的に残る |
|
| 約100㎡の飲食区画と約35㎡の厨房区画 |
|
| 視線の先に広がるのは庭師により計画された庭園 |
|
|
| 賃料 | 40万円 | 専有面積 | 134.61㎡ |
| 保証金 | 3ヶ月 | 礼金 | なし |
| 償却 | なし | 共益費 | 40,000円 |
| 所在地 | 大阪府守口市本町 | ||
| 交通 |
大阪メトロ谷町線「守口」駅 徒歩2分 京阪本線「守口市」駅 徒歩5分 |
||
| 建物構造 | 木造 2階建て | 所在階 | 1階 |
| 築年 | -年 | 取引態様 | 媒介 |
| 設備 | 電気/都市ガス/水道/共用トイレ | ||
| 備考 | 定期借家契約(期間:2035年3月31日)/3年未満の早期解約時違約金有(3年未経過賃料支払い義務)/即入居可/記載の賃料、共益費、礼金は税別/駐輪場/バイク置場/店舗利用可(飲食可)/連帯保証人必須/賃貸借保証委託契約必須/火災保険必須/飲食店可/1階・路面 | ||
| 情報修正日時 | 2026年3月17日 | 情報更新予定日 | 2026年4月25日 |
〒530-0043 大阪市北区天満2丁目6-20 Tel 06-6443-1350
宅建業免許番号:大阪府知事(6)第46315号
あなたにおすすめの物件


