|
|
|||||||||||||||||||
立ち止まる余白 |
||||||||||||||||||||
|
||||||||||||||||||||
|
||||||||||||||||||||
|
||||||||||||||||||||
|
【価格改定しました!】 年を重ねるにつれて「谷町」というエリアの魅力を一層強く感じるのは私だけではないはず。
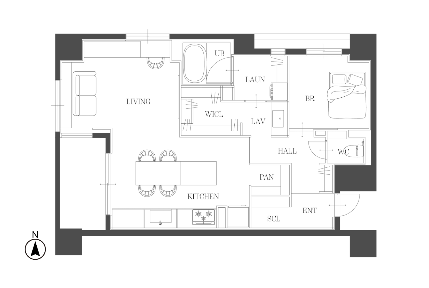
オフィス街でもあり、ビルの合間に古い町家やカフェ、アトリエなども点在する街。かつては豊臣秀吉が上町台地の南側に寺を集めて江戸時代に再整備され、現在では谷町筋や松屋町筋に沿ってお寺が並ぶ「寺町」と呼ばれているエリア。夕暮れ時には鐘の音が響き、忙しい一日の終わりをやさしく告げてくれます。 そんな街に佇む今回の物件は、都会の利便性と心地よい静寂を両立させた物件。 仕事のための集中と、暮らしのための解放。そのどちらも叶えるための舞台がここにはあります。 内装はシンプルで上質。 白を基調とした壁に木フローリングとグレーのタイルのバランスがよく居心地の良い空間。 二面採光なので室内は明るく、心地よい風が一日のリズムを整えてくれます。 在宅で仕事をする方にもオンとオフを上手に切り分けられるようにデスクスペースを設置。 圧迫感がなく静かに思考を深められる空間です。 資料をまとめる時間も、コーヒーを淹れてひと息つく時間もどちらも受け入れてくれるリビングスペース。気の合う仲間を呼んで週末にはパーティーをしたくなるダイニングキッチンもあります。 この物件のさらなる魅力は、“ペットと共に暮らせる”こと。 都市生活の中で心の拠り所となる存在を迎えられる自由。この物件には「自分を整える」暮らしを叶えることが出来ます。 場所は、大阪メトロ「谷町六丁目」駅まで徒歩3分、「谷町四丁目」駅までも徒歩4分というアクセスの良さ。出勤前にお気に入りのパン屋さんに立ち寄ったり、仕事終わりには仲間と飲みに出かけたり。もちろんすぐに自宅に帰って好きな事に没頭するも良し。大阪城公園や空堀商店街までも徒歩10分ほど。 時間に追われ、予定に埋もれる時代だからこそ、必要なのは自分を見つめ“立ち止まる余白”。 この空間は住まいであり、仕事場であり、そして人生の節目を静かに見つめ直す拠点です。肩の力を抜いて深呼吸できる場所が、あなたの日常になるかもしれません。 *ペット飼育可(規約制限有) *管理費・修繕積立金等の月額合計:25,190円 *月々返済 148,397円台~ (5,980万円借入、借入期間40年、元利金等、金利0.9%の場合) *新耐震基準(住宅ローン控除適用可) *写真内の家具、インテリアは撤去します *2025年9月リノベーション竣工 |
![]() |
|
| 造作のデスクスペース。集中して仕事ができそう。 |
|
| 白を基調とし、木の温もりも感じる事の出来る室内 |
|
| 仲間を呼んでパーティーをしたくなるダイニングスペース |
|
| パントリーも広く使い勝手が良さそうです。 |
|
|
| >>大きな地図で見る  |
| 価格 | 5,980万円(税込) | 専有面積 | 60.46㎡ |
| 管理費 | 8,740円 | 修繕積立金 | 16,450円 |
| 所在地 | 大阪府大阪市中央区谷町5丁目 | ||
| 交通 |
大阪メトロ谷町線・長堀鶴見緑地線「谷町六丁目」駅 徒歩3分 大阪メトロ谷町線・中央線「谷町四丁目」駅 徒歩4分 |
||
| 建物構造 | 鉄骨鉄筋コンクリート造 14階建て | 所在階 | 6階 |
| 築年 | 2005年 | 土地権利 | 所有権 |
| 敷地面積 | 670.35㎡ | 都市計画 | 市街化区域 |
| 用途地域 | 商業地域 | 建蔽率/容積率 | 80%/800% |
| その他費用 | 取引態様 | 媒介 | |
| 設備 | 電気/都市ガス/水道/ガス給湯(キッチン、洗面、浴室)/キッチン(ビルトイン3口ガスコンロ)/独立洗面台/浴室/トイレ(洋式)/室内洗濯機置場/モニター付インターフォン/宅配ボックス | ||
| 備考 | 分譲会社:株式会社ホームズ/施工会社:栗本建設工業株式会社/管理会社:住友不動産建物サービス株式会社/管理形態:全部委託/総戸数:69戸/バルコニー面積:5.61㎡/現況:空室/引渡時期:相談/ペット可(規約制限有)/記載の面積は壁芯実測面積/敷地内駐車場(空きなし)/リノベーション竣工:2025年9月 | ||
| 情報修正日時 | 2025年11月5日 | 情報更新予定日 | 2026年2月26日 |
〒530-0043 大阪市北区天満2丁目6-20 Tel 06-6443-1350
宅建業免許番号:大阪府知事(6)第46315号
あなたにおすすめの物件


