|
|
|||||||||||
日々がハレの日に、小豆色の住まい |
||||||||||||
|
||||||||||||
|
||||||||||||
|
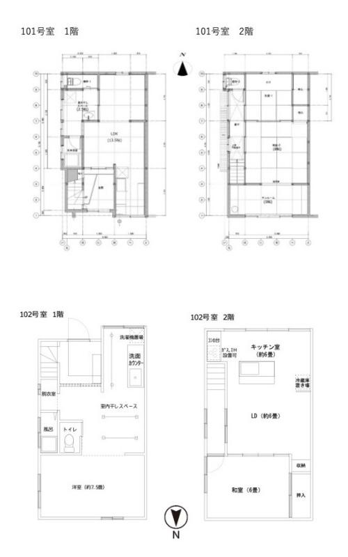
深い小豆色のタイルが可愛い外観に虜になってしまい、私がここに住みます!と宣言してしまいそうに。 大阪R不動産で以前も募集していた長屋のリノベーション物件、今回は新たに改装された1軒を加えて2軒同時の募集です。 まずは101号室からご紹介。 玄関扉を開けるとどこからか懐かしい良い香りに包まれます。管理人さんのおばあさまの家だったこちらの物件。懐かしさはそこから滲み出てくるのかも。 角に面した101号室は、西側からの採光を生かしたランドリースペースおよび水回りが、細工ガラスの建具によって生活空間のLDKと緩やかに仕切られているのが特徴。 広々業務用シンクが料理付きにはたまらないキッチンは、IHもガスコンロも設置可能です。壁に接していて窓もある、そんな理想のキッチンです。 2階は熊本県産の畳のいぐさの匂いに包まれています。いますぐにゴロンと寝転びたい。落ち着いた和室と、渋さとあたたかさを備えた洗面付きサンルームにテンションが上がります。旅館の風情が好きな人はきっとお気に入りになるはず。 床タイルが可愛いらしいトイレも2階にあって、一日中2階でのんびりとくつろげてしまいます。 ここでささやかな癒し時間を過ごすのはどうでしょう。 2軒長屋のもう一方102号室。 101号室と同じ間取りと侮ることなかれ。 元々1階は同じようなLDKの間取りでしたが、2軒長屋の角に面していない方ということもあり採光があまり取れずリビングとしては薄暗いのがネックでした。そこで思い切って1階を広いランドリースペースに、2階をLDKに間取り変更。 底の深い流し台に作業台、三本の物干しラックが天井から下がっていて洗濯物干し放題。洗濯好きなら嬉しくて飛び上がるほどの充実っぷり。干す場所が少ない!なんていうストレスからはさようなら。 そして2階のLDKは南側に大きくとった窓から光が差し込みます。開放的なキッチンで鍋をふるえば一流シェフになった気分。 1階には7.5帖の洋室、2階キッチンのお向かいには6畳和室。ベッド派の方もお布団派の方も洗濯したてのふかふかの寝具でおやすみなさい。 小豆はハレの日に食される縁起のよい食べ物。そんな小豆と同じ色の外観を持つこの住まいでは、縁起のいい日々が始まる予感。 ハレの日は日常とは違う特別な日のこと。 暮らしに寄り添ったリノベーション空間が日々の豊かさをそっと後押しし、日常を特別な日々にしてくれるでしょう。 魅力的なこの2軒は、快適な住まいとなるよう防音や断熱など見えないところも手は抜かれておりません。おばあちゃん家に遊びに行った時のくつろぎとワクワクが共存したあの感じ(101号室)、洗濯や料理などちょっと暮らしにこだわりたい、大人のこだわりを包み込む(102号室)。 人間みと温かみが滲むここの空気感と波長の合う方をお待ちしています。
101号室 *成約済み 102号室 *成約済み 【広さ】63.83平米 【賃料】10万円 *早期解約時違約金有(1年未満:総賃料の2ヶ月分、2年未満:総賃料の1ヶ月分) *家主審査あり |
![]() |
|
| 隣り合った2軒、見た目もちょっぴり違います。 |
|
| リビングから水回りへ。(101) |
|
| 木の色合いが落ち着くリビング。(101) |
|
| リビングから(101) |
|
|
| 賃料 | 専有面積 | 63.83㎡ | |
| 敷金 | 2ヶ月 | 礼金 | なし |
| 償却 | なし | 管理費 | なし |
| 所在地 | 大阪市東淀川区菅原7 | ||
| 交通 |
JRおおさか東線「淡路」駅 徒歩5分 阪急京都線・阪急千里線「淡路」駅 徒歩9分 |
||
| 建物構造 | 木造 2階建て | 所在階 | 1,2階 |
| 築年 | 1969年 | 取引態様 | 媒介 |
| 設備 | 電気(専用メーター)/都市ガス/水道(専用メーター)/ガス給湯(キッチン、洗面、浴室)/キッチン(ガステーブル・卓上IHクッキングヒーター設置可)/独立洗面台/浴室(在来工法)/トイレ(洋式)/浴室とトイレ独立/室内洗濯機置場/エアコン/モニター付インターフォン ※101号室のエアコンは残置物につき賃貸人は性能保証を負いません。 | ||
| 備考 | 募集戸数:2戸/早期解約時違約金有(1年未満:総賃料の2ヶ月分、2年未満:総賃料の1ヶ月分)/現状有姿で引渡し/記載の面積は登記簿面積/各階面積(101号室|1F:36.19平米、2F:27.93平米 102号室|1F:34.84平米、2F:28.99平米)/ペット不可/宿泊施設利用不可/室内禁煙/連帯保証人必須/賃貸借保証委託契約必須(全保連株式会社。初回保証委託料:総賃料の50%、継続保証委託料:13,000円/1年)/火災保険必須(借家人責任賠償付きのもの) | ||
| 情報修正日時 | 2025年10月10日 | 情報更新予定日 | 2025年12月27日 |
〒530-0043 大阪市北区天満2丁目6-20 Tel 06-6443-1350
宅建業免許番号:大阪府知事(6)第46315号
あなたにおすすめの物件



