|
|
|
||||||||||||||||||
流れが来ている弁天町! |
||||||||||||||||||||
|
||||||||||||||||||||
|
||||||||||||||||||||
|
||||||||||||||||||||
|
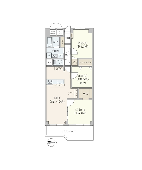
派手な変化はないけれど、確実に流れは来ている。弁天町は、そんな場所です。大きなきっかけのひとつは、やはりベイエリアの動き。2025年の大阪・関西万博を経て、夢洲を中心に開発が進み、その動線上にあるこの街にも、じわじわと注目が集まり始めています。 中央線で一本。この分かりやすさもあって、これまで通過点だった場所が、少しずつ選ばれる場所へと変わりつつあるように思います。環状線と中央線が交わるターミナルでありながら、一歩駅を離れると、落ち着いた住宅街が広がっている。本町へも、心斎橋へも、梅田へも電車で数分。それでいて、帰ってきたときには少し肩の力が抜ける。この距離感が、弁天町のちょうどよさだと思うのです。 駅前には大型施設やスーパーが揃い、生活の利便性はしっかり確保されている。一方で、昔ながらの飲食店や個人商店も残っていて、歩いていると、ふと顔の見える街だなと感じる瞬間があります。休日に、あてもなく港の方へ歩いていく。そんな過ごし方も、この街にはよく似合います。 そして、室内もまた、その延長にあるような空間です。 天井はラフに躯体現しのまま。床は少し重ためのフローリング。つくり込みすぎていないのに、ちゃんと雰囲気がある。このくらいのバランスが、ちょうどいいです。 広さは約70平米。2LDK+Sという間取りも、暮らし方に合わせて使いやすそう。ベースはそのまま活かしながら、一部を部分的にリノベーションして使うのも良さそうです。自分の理想を少しずつ盛り込める余白がある。その余白こそが、結果的に長く愛着を持てる理由になる気がします。 派手ではないけれど、じわじわ良くなっていく街。住みながら少しずつ育てていける部屋。どちらにも、ちょうどいい未完成さがある。だからこそ、この場所での暮らしは、少しずつ自分の形になっていくはずです。 |
![]() |
|
| 約14畳のLDKスペース。 |
|
| ほどよく抜けた眺望。 |
|
| LDKの隣にある、6.4畳の寝室。 |
|
| キッチンスペース。 |
|
|
| 価格 | 2,680万円 | 専有面積 | 71.52㎡ |
| 管理費 | 5,500円 | 修繕積立金 | 10,000円 |
| 所在地 | 大阪市港区弁天2丁目 | ||
| 交通 |
大阪メトロ中央線「弁天町」駅 徒歩4分 JR環状線「弁天町」駅 徒歩6分 |
||
| 建物構造 | 鉄骨鉄筋コンクリート造 11階建て | 所在階 | 7階 |
| 築年 | 1982年 | 土地権利 | 所有権 |
| 敷地面積 | 都市計画 | 市街化区域 | |
| 用途地域 | 商業地域 | 建蔽率/容積率 | 80%/600% |
| その他費用 | 取引態様 | 媒介 | |
| 設備 | 電気/都市ガス/水道/ガス給湯/キッチン/独立洗面台/浴室(ユニットバス)/トイレ(洋式)/室内洗濯機置場 | ||
| 備考 | ペット不可/分譲会社:大阪市住宅供給公社/施工会社:株式会社梗並工務店/管理会社:-/管理形態:自主管理/総戸数:55戸/バルコニー面積:8.05㎡/現況:空室/引渡時期:相談 | ||
| 情報修正日時 | 2026年4月10日 | 情報更新予定日 | 2026年4月26日 |
〒530-0043 大阪市北区天満2丁目6-20 Tel 06-6443-1350
宅建業免許番号:大阪府知事(6)第46315号
あなたにおすすめの物件


