|
|
|
||||||||||||||||||
リバーサイド・オフィス革命 |
||||||||||||||||||||
|
||||||||||||||||||||
|
||||||||||||||||||||
|
||||||||||||||||||||
|
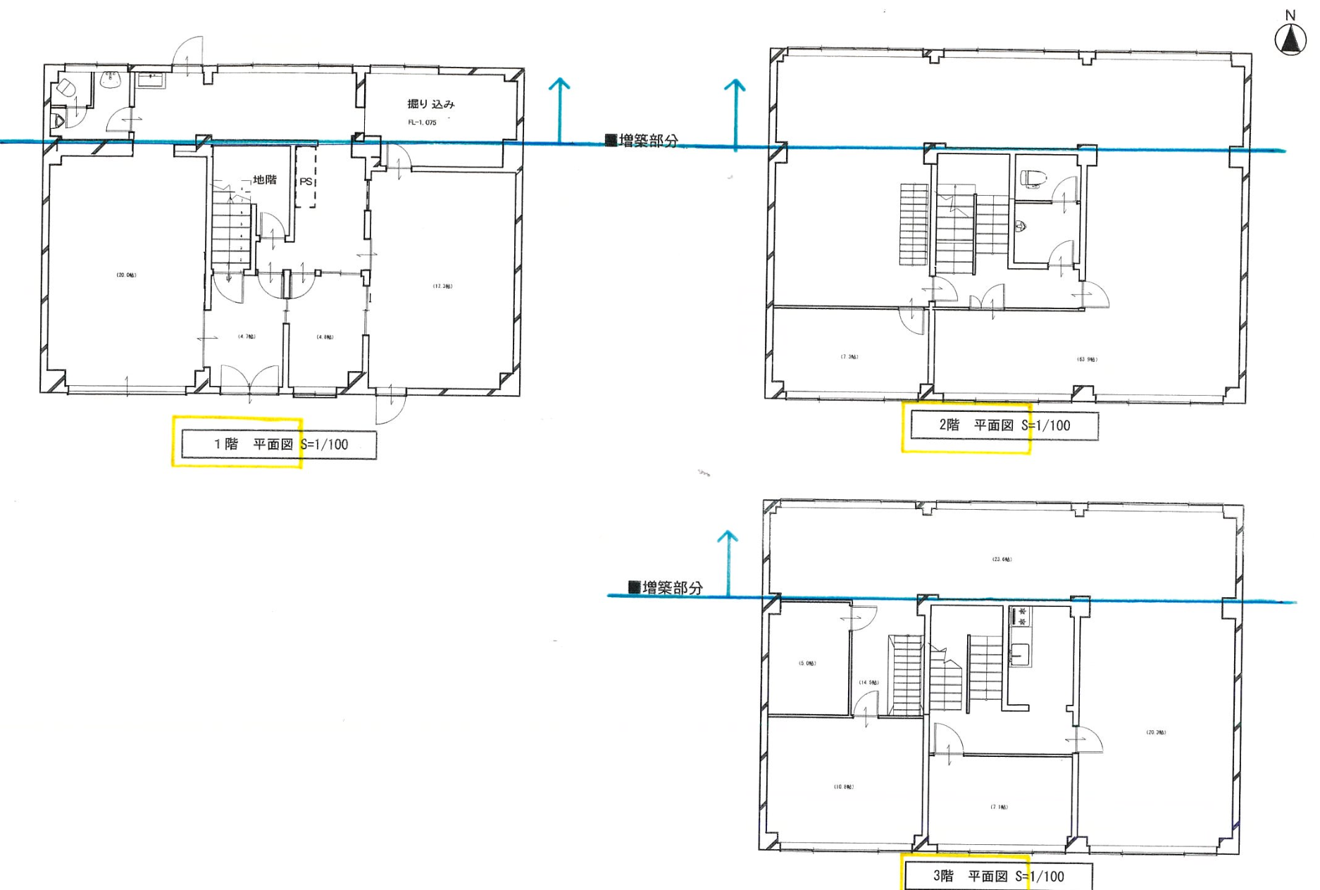
窓いっぱいに広がるリバービュー!こんなビル、なかなか出会えません。 今回ご紹介するのは、土佐堀川を真正面に臨むリバーサイドビルの一棟。ギラギラした都会感はなく、すっと抜けた視界と、川沿いならではのやわらかく明るい光が差し込みます。 用途はオフィスに限らず、フォトスタジオやデザイン事務所兼ショールーム、物販店舗、飲食店舗としても良さそうです。川を背景にした空間は、それだけでコンセプトになります。 さらに推したいのが、広々とした屋上。柵の設置や修繕は必要ですが、植栽やハンモックを置いて休憩スペースにするのも良さそう。ぜひ現地で想像を膨らませてみてください。 屋上の活用方法はこちらをご参考に!↓ AC PAPER:ISSUE14【屋上リバイバル】ビル自体は、多少の修繕が必要です。今の味を活かして修繕し、引き継いでいくのもいいですし、事業内容に合わせて大胆にリノベーションするのもいい。ロケーションという圧倒的な魅力があるからこそ、「どう活かすか」を考える余白があります。 そして最後に、物件近くには、2031年の春に開業予定の“なにわ筋線”「中之島駅(仮称)」が新設予定。これからさらに便利になっていくエリアです。 川とともに働く日常。 ありきたりな箱では物足りない方へ。 (あめんぼ) *エレベーターなし *現状有姿取引(契約不適合責任免責 及び 設備補修責任免責) *現在、河川敷(約40㎡)を大阪府の占用許可を受け建物を増築しています。(占用料:139,230円/年) ※現在の建物を建て替え後は占用不可。 *現在残置している物品は、すべて所有者により撤去予定 *未登記増築部分あり(約100㎡) |
![]() |
|
| 土佐堀川に沿って、水平連続窓。 |
|
| 3階事務所スペース。 |
|
| 2階事務所スペース。※全て物品は撤去されます。 |
|
| 眺望良好。 |
|
|
| >>大きな地図で見る  |
| 価格 | 応相談 | 建物面積 | 278.85㎡ |
| 管理費 | なし | 修繕積立金 | なし |
| 所在地 | 大阪市西区土佐堀3丁目 | ||
| 交通 |
京阪中之島線「中之島」駅 徒歩5分 大阪メトロ中央線・千日前線「阿波座」駅 徒歩7分 |
||
| 建物構造 | 鉄筋コンクリート造 3階建て | 所在階 | 1-3階 |
| 築年 | 1956年 | 土地権利 | 所有権 |
| 土地面積 | 109.94㎡ | 都市計画 | 市街化区域 |
| 用途地域 | 商業地域 | 建蔽率/容積率 | 建ぺい率:80% 容積率:600% |
| その他費用 | 河川敷占用料(年間):139,230円 | 取引態様 | 媒介 |
| 設備 | 電気/都市ガス/公営水道/公共下水 | ||
| 備考 | 現況:空室/現状有姿で引渡し/引渡し時期相談/記載の面積は登記簿面積/各階面積(1F:92.95平米、2F:92.95平米、3F:92.95平米)/その他、未登記増築部分(約100㎡)あり/北向き主要採光窓/敷地内駐車場/売主契約不適合責任免責/設備補修責任免責/地目:宅地/接道状況:幅員約8mの一方通行の公道に建物南側が14.4m接道/防火地域/駐車場整備地区/河川保全地区/現在、河川敷(約40㎡)を大阪府の占有許可を受け建物を増築しています。建替後は占有不可になります。なお、占有料は139,230円/年 | ||
| 情報修正日時 | 2026年2月12日 | 情報更新予定日 | 2026年2月28日 |
〒530-0043 大阪市北区天満2丁目6-20 Tel 06-6443-1350
宅建業免許番号:大阪府知事(6)第46315号
あなたにおすすめの物件


