|
|
|
||||||||||||||||||
週末は里山で! |
||||||||||||||||||||
|
||||||||||||||||||||
|
||||||||||||||||||||
|
||||||||||||||||||||
|
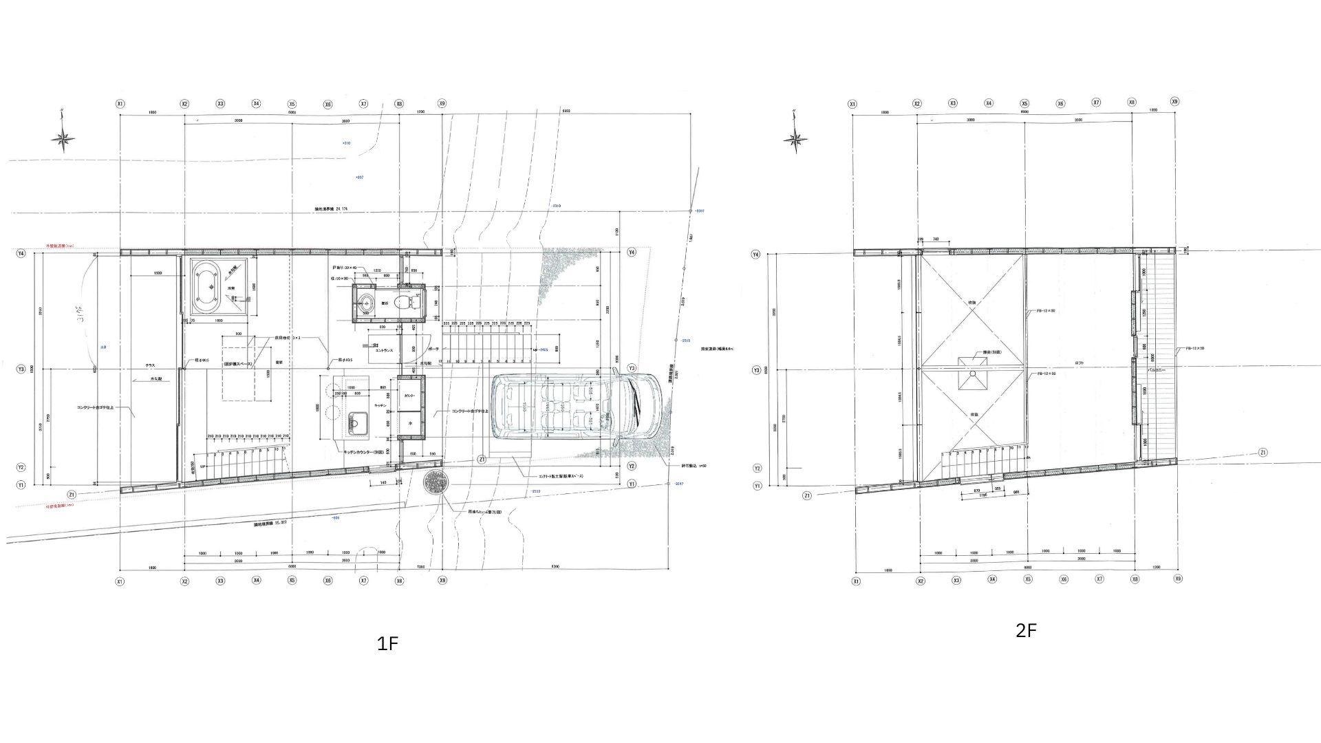
平日は都心で過ごし、週末は自然に囲まれた郊外で。そんな妄想を叶えるならこんな物件なのかもしれません。 北大阪急行の延伸で、ぐっと身近になった箕面のはずれ。 "水と緑の健康都市"としてつくられた自然と共生する郊外型ニュータウン、箕面森町。そのなかでも里山住宅地区と呼ばれる里山の裾野に、建築家によって建てられた週末住宅です。 里山への眺めを意識して設計された建物は、里山に対して開いていく、メガホンのようなカタチで、全面がガラス張り。 里山側にはもうひとつ建物が建ちそうなくらいの大きな庭があって、建物のボリュームは控えめに、その分外の余白を大きくとった配置になっています。 1階はモルタル床の土間と小上がり、それと水回り。軽やかな鉄骨階段を上った先には、ロフト+一室。必要十分な室と設備で構成された建物は、小さいながらも開放的です。 玄関ドアを開けると、すでに“里山ビュー”が始まっている。そんな抜け感が、面積以上の余裕を感じさせてくれます。 建築家の設計で洗練された室内設備。 床がそのまま立ち上がったようなコンクリート製のキッチンに、なんといってもばっちり"里山ビュー"のバスルーム。ガラス張りの窓に浴槽を置くという潔さ。里山一列目だからこそできる配置はこの物件のハイライトかもしれません。 モルタルの床にガラス張りと冬場の寒さが心配なところではありますが、土間には温水床暖房が仕込まれていて、小上がりの端には囲炉裏も。部屋の中心の吹き抜けを煙突が登っていく、暖の取り方まで粋です。 里山に面した庭は山の一部のようで、BBQや焚き火、菜園など都心ではできないことも思い切って楽しめます。物置小屋もついていて、アウトドア用品などの置き場所にも困りません。 箕面萱野駅からバスで約30分、車では大阪市内から1時間弱という立地。程よい距離感でありながらも、都心部では得られない自然環境が広がる大阪の山奥。キャンプより、グランピングより、もう少し手頃な感覚で、週末に自然と向き合えそうです。 里山のふもとに建つ、建築家設計の週末住居。 「いつか週末住居をもつ」、そんな妄想が現実味を帯びてきたのではないでしょうか。 *現状有姿で引渡し *売主瑕疵担保責任免責 *設計:阿久津友嗣事務所 *週末住居や別荘だけなく、主たる住居としても。
|
![]() |
|
| モルタルの玄関、窓の向こうにはすでに里山が見えます。 |
|
| 実はモルタル床は床暖房が備わっています。 |
|
| 小上がりの端には囲炉裏と煙突。 |
|
| 庭と里山とはこんな距離感。プライベートビーチならぬプライベートマウンテン!?でのびのびと使えます。 |
|
|
| 価格 | 3,480万円 | 専有面積 | 59.36㎡ |
| 管理費 | なし | 修繕積立金 | なし |
| 所在地 | 大阪府箕面森町北 | ||
| 交通 | 北大阪急行「箕面萱野」駅 バス26分 「森町里山住宅口」バス停 徒歩5分 | ||
| 建物構造 | 鉄骨造 2階建て | 所在階 | 1-2階 |
| 築年 | 2012年 | 土地権利 | 所有権 |
| 土地面積 | 214.46㎡ | 都市計画 | 市街化区域 |
| 用途地域 | 第二種中高層住居専用地域 | 建蔽率/容積率 | 60%/150% |
| その他費用 | 取引態様 | 媒介 | |
| 設備 | 電気/都市ガス/水道/囲炉裏/床暖房 | ||
| 備考 | 現況:空室/引渡時期:相談/現状有姿で引渡し/各階面積(1F:39.2平米、2F:20.16平米)/売主瑕疵担保責任免責/地目:宅地/法22条区域/第三種高度地区/検査済証有 | ||
| 情報修正日時 | 2026年1月24日 | 情報更新予定日 | 2026年2月11日 |
〒530-0043 大阪市北区天満2丁目6-20 Tel 06-6443-1350
宅建業免許番号:大阪府知事(6)第46315号
あなたにおすすめの物件


