|
|
|
||||||||||||||||||||
持とう、第二のリビング |
||||||||||||||||||||||
|
||||||||||||||||||||||
|
||||||||||||||||||||||
|
||||||||||||||||||||||
|
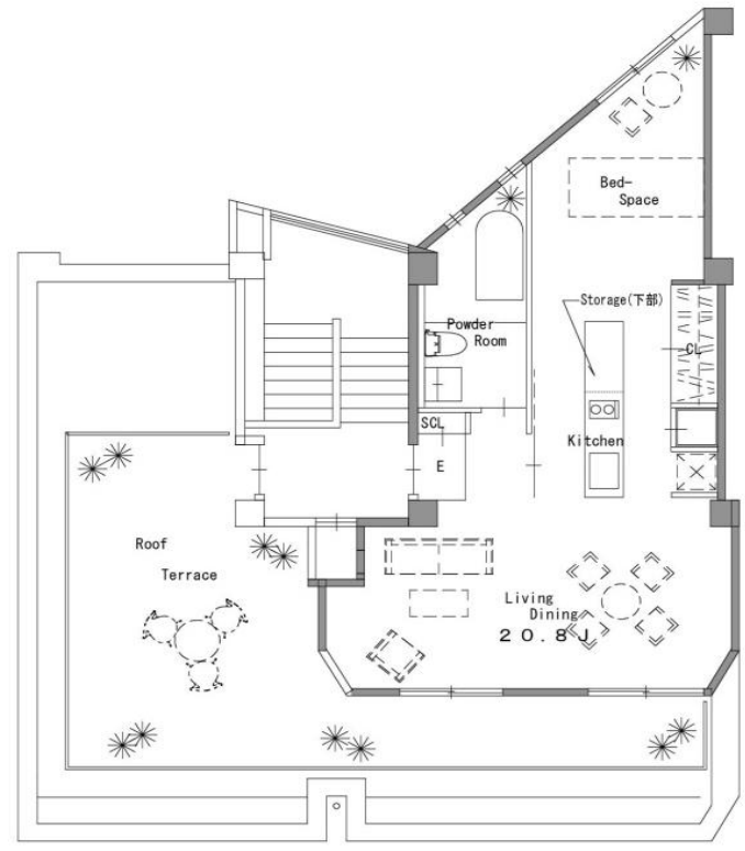
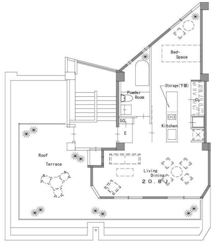
ルーバルつき、畑つき。 狭っ苦しさとはおさらばして、部屋が外へ外へと拡張していくような感覚になる部屋に住んでみましょう。 まずはこの図面をご覧ください。 階段をぐるっと独り占めする最上階。リビングほどの大きさがあるルーフバルコニー。前衛的な(物理的に)尖った北側のスペース。 …なんて変な部屋! それでいて実際は、塗装の壁やステンレスキッチン、優しく包み込んでくれるような造作家具のナチュラルな素材感が特徴的。さらにこの物件の目玉は、目の前に広がる畑だったりします。 目の前の広い畑、その一角にこちらのマンション入居者さん専用の区画があり、農具も自由に借りられます。 畑のオーナーさんが使い方や育て方までサポートしてくださり、なんとシーズンには種や苗も用意してくれるんだとか。 スタッフも収穫を体験させていただきましたが、やっぱり土に触れるのはいい時間です。種から育てるとなると大変なことも多いですが、きっと収穫の喜びはひとしお。しかも近くにその道の師匠がいてくれるのですから、こんなありがたいことはありません。 そんな、広い畑での家庭菜園を全力も全力で応援してくれるこちらの物件、御堂筋線、JR阪和線の2路線アクセスで、便利な大阪市内に位置しています。 長居ってどんな場所?暮らしやすさはどんなふう?という方は、こちらのまちコラムもぜひご参考に。 ▷人情味あふれる、のんびり暮らし楽しむ街、長居・あびこ:【まちコラム_長居・あびこ編】1967年築のレトロなマンションですが、2006年に建物全体をリノベーション。常時オートロックで駐輪場もオートロックの内側です。階段のみである点には注意してください!このルーフバルコニーを手に入れるための代償です。 バスルームは浴槽、洗面、トイレが1室にまとまったホテル仕様で好みが分かれるところですが、置き型のバスタブにはテンションが上がります。 畑でとれた野菜を調理してルーフバルコニーでパーティー。夢の生活の幕開けです! ■便利な御堂筋線沿線です。 長居駅⇔なんば駅 13分 長居駅⇔梅田駅 23分 《募集区画》 5階-B Type ※エレベーターなし、階段のみ |
![]() |
|
| ルーバルと畑 |
|
| 気になることが多い図面 |
|
| 洗濯物もここで干せます。うわー、布団干したい。 |
|
| 掃き出し窓が二つ並ぶという贅沢 |
|
|
| >>大きな地図で見る  |
| 賃料 | 8万7,000円 | 専有面積 | 48.73㎡ |
| 敷金 | なし | 礼金 | 1ヶ月 |
| 償却 | なし | 共益費 | 7,000円 |
| 所在地 | 大阪市住吉区大領4丁目 | ||
| 交通 |
JR阪和線「長居」駅 徒歩6分 大阪メトロ御堂筋線「長居」駅 徒歩8分 |
||
| 建物構造 | 鉄筋コンクリート造 5階建て | 所在階 | 5階 |
| 築年 | 1967年 | 取引態様 | 媒介 |
| 設備 | キッチン(ガス2口コンロ)/浴室一体洗面台/浴室(在来工法)/トイレ(洋式)/浴室とトイレ一体/室内洗濯機置場/エアコン(2基)/エレベーター無し/常時オートロック/宅配ボックス/NTTフレッツ光インターネット無料(1Gbps)/駐輪場無料/バイク駐車場(2,200円/月、大型バイク不可) | ||
| 備考 | ペット不可/募集戸数:1戸/1年未満の早期解約金有り(賃料1ヶ月分)/即入居可/南向きバルコニー/SOHO利用可(事務所登記不可)/賃貸借保証委託契約必須(日本セーフティー。連帯保証人必須。初回保証委託料:総賃料の50%、年間保証委託料:10,000/年)/火災保険必須(20,000円/2年、変更可)/鍵交換代:税込11,000円/リノベーション竣工:2006年3月 | ||
| 情報修正日時 | 2025年10月20日 | 情報更新予定日 | 2025年11月7日 |
〒530-0043 大阪市北区天満2丁目6-20 Tel 06-6443-1350
宅建業免許番号:大阪府知事(6)第46315号
あなたにおすすめの物件


