|
|
|||||||||||||||||||
建築家の手仕事を日常に。 |
||||||||||||||||||||
|
||||||||||||||||||||
|
||||||||||||||||||||
|
||||||||||||||||||||
|
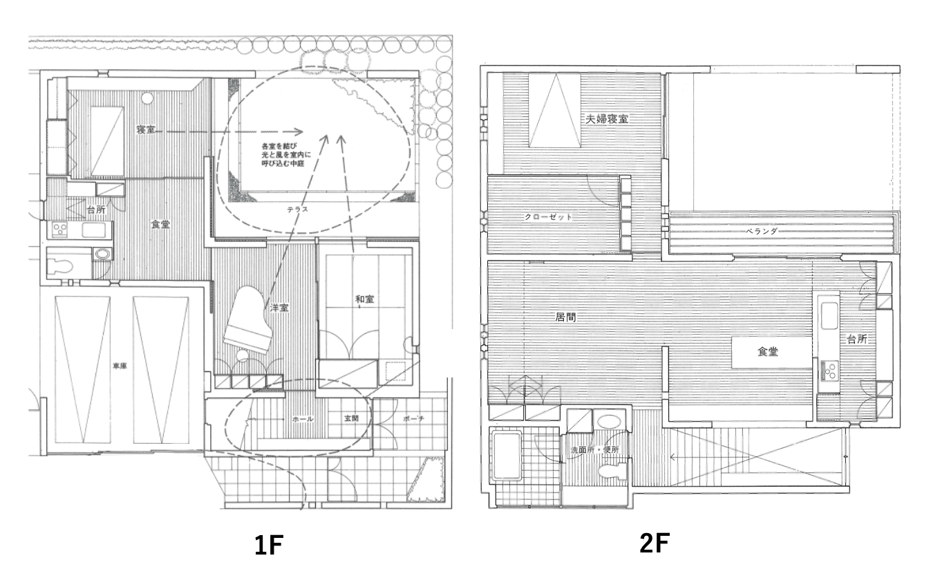
高槻市西部の住宅街に佇む、建築家の手仕事が感じられる邸宅。 施主でもある現在のオーナーが、1994年に伊東建築計画室へ依頼し、竣工した住まいです。 打放しコンクリートやコンクリートブロックといった無機質な素材が連続しながらも、どこか微笑んでいるようなやわらかさが感じられる外観です。 ファサードの凹凸や、曲線を描く緑青銅板の屋根が、建物に豊かな表情を与えているのだと思います。西側から眺めると、大胆に光を取り込む構成になっていて、「本当はこちらがメインなのでは……」と、思わず頬がゆるみます。 室内に入ると、建築家と施主のこだわりが、時が経過した今もが廃れることなく細部に宿っています。 上質な素材と住まいへの想いが詰まっているからこそ、この先の数十年もまた、歴史を重ねながら深みが、より増していく建物なのだと思っています。 そして室内へ降り注ぐ光・木・コンクリートの絶妙なバランスが、建築としてのデザインを美しく整えています。 ここからインテリアが入ることによって、空間がさらに豊かになっていくのだろうと想像がふくらみます。 もともとは二世帯住宅として設計された住まいのため、キッチンやダイニングがふたつあります。プライベートな空間がほどよく二層に分かれているので、親世帯との同居にもちょうどいい建物です。 もちろん、一家族でゆったりと贅沢に暮らす楽しみ方もあります。 公共交通機関はあるものの、車が1台以上所有されている方におすすめしたい立地です。 なお、外壁まわりは洗浄や塗装の時期を迎えています。引き継ぐタイミングで、内装の一部とあわせて外壁の修繕も検討いただくのがよさそうです。 建築家による上質な作品を引き継げる、貴重な機会です!ぜひ現地で、素材の質感や、周辺環境を含めたこの建築のあり方を体感してみてください、惚れますよ。 設計:伊東建築計画室 施工:小阪工務店 ✳︎土室小学校区、立阿武山中学校区 ✳︎敷地内駐車場あり(最大高さ約2.2m) ✳︎一部雨漏あり(2Fトイレサッシ下部分、修繕をお勧めします) ✳︎インテリアは撤去されます。 ✳︎契約不適合責任免責 ✳︎設備補修請求無し *月々返済 133,000円台〜 (三菱UFJ銀行、4,780万円借入(修繕費用含まず)、借入期間35年、元利金等、ボーナス返済なし、変動金利0.945%の場合) |
![]() |
|
| 降り注ぐ光がコンクリートの表情を豊かに表現します。 |
|
| 名作ウォールライト(FLOS/Tobia Scarpa) |
|
| 洗練されつつ、存在感ある玄関。 |
|
| 「流行り廃りがないデザイン」の基本が詰まっています。 |
|
|
| >>大きな地図で見る  |
| 価格 | 4,780万円 | 専有面積 | 192.88㎡ |
| 管理費 | なし | 修繕積立金 | なし |
| 所在地 | 大阪府高槻市塚原6丁目 | ||
| 交通 | JR京都線「摂津富田」駅 バス13分 「日赤病院南」バス停 徒歩9分 | ||
| 建物構造 | 鉄筋コンクリート造 2階建て | 所在階 | 1-2階 |
| 築年 | 1994年 | 土地権利 | 所有権 |
| 敷地面積 | 199㎡ | 都市計画 | 市街化区域 |
| 用途地域 | 第一種低層住居専用地域 | 建蔽率/容積率 | 50%/100% |
| その他費用 | 取引態様 | 媒介 | |
| 設備 | 電気/都市ガス/公営水道/公共下水 | ||
| 備考 | ペット可/地目:宅地/現況:空室/引渡時期:相談/記載の建物面積は登記簿面積/記載の土地面積は登記簿面積/土室小学校区/立阿武山中学校区/駐車場あり(最大高さ約2.2m)/契約不適合責任免責/設備補修請求無し/接面道路:北側公道(幅員約8.30m・接面約13.77m)/一部雨漏あり/設計:伊東建築計画室/施工:小阪工務店/居住誘導区域/第1種高度地区 /庭付き/駐車場あり | ||
| 情報修正日時 | 2026年3月4日 | 情報更新予定日 | 2026年4月25日 |
〒530-0043 大阪市北区天満2丁目6-20 Tel 06-6443-1350
宅建業免許番号:大阪府知事(6)第46315号
あなたにおすすめの物件


