|
|
|||||||||||||||||||||
宇宙船ワンルーム |
||||||||||||||||||||||
|
||||||||||||||||||||||
|
||||||||||||||||||||||
|
||||||||||||||||||||||
|
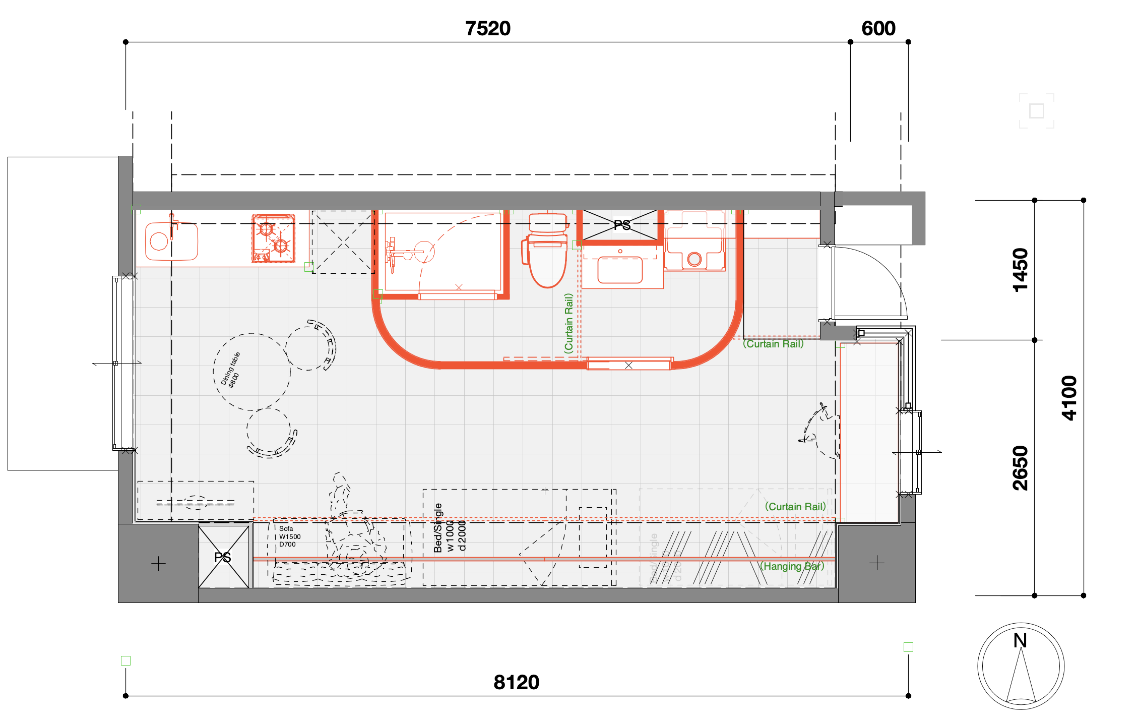
【賃料改定しました!】 部屋の中央に、存在感を放つコア。この部屋の主役です。 部屋全体にどこか宇宙を感じさせる雰囲気があり、このコアはまるで宇宙船の操縦室のように感じたのですが、同じように感じた方はいらっしゃるでしょうか…(不安) さて、このコアの正体は水回りです!可愛らしい丸みを帯びたフォルムに、波状のデザインがこの部屋の雰囲気を柔らかくしています。外周の仕上げにはガルバリウム鋼板を使用しており、磁石がひっ付くのもポイント。ちょっとしたアレンジも楽しめます。 室内は“白”を基調に、打ち放しコンクリートとの相性も抜群。視界がドーンと抜けるつくりもお気に入りポイントです。全体的に明るく すっと気持ちのいい印象で、約32㎡のワンルームとは思えないほど、体感的にはゆったりと感じられるはず。 玄関横に設けられたデスクスペースは仕事や趣味にちょうどよく、仕切りがなくても生活空間を自然に切り分けられます。ワンルームだからこそ、こういったスペースがあるのは嬉しいポイントですよね。 最後に、バルコニーからは大阪城ビュー。 休日には大阪城公園まで、ふらっとお散歩が楽しめます。内覧時にひとつ確認していただきたいのが、阪神高速の音。バルコニー側に高速道路があるため、音が少し気になる方もいるかもしれません。 外観は意匠を凝らしたデザインで、設計は遠藤剛生。 中庭をはじめとする共用部もユニークで、建物全体に緑の豊かさがあります。共用部・内装ともに、探してもなかなか出会えない特別なワンルーム。 一人暮らしを「空間」から楽しみたい方に、おすすめします。 (あめんぼ) リノベーション設計施工:アートアンドクラフト(2025年12月) |
![]() |
|
| 白×打ち放しコンクリートのスタイリッシュなワンルーム。 |
|
| ミニマムなキッチン。 |
|
| ダイニングスペース。 |
|
| さて、こちらはなんでしょう。 |
|
|
| >>大きな地図で見る  |
| 賃料 | 9万9,000円 | 専有面積 | 32.33㎡ |
| 敷金 | なし | 礼金 | なし |
| 償却 | なし | 管理費 | 8,000円 |
| 所在地 | 大阪府大阪市東成区中道1丁目 | ||
| 交通 |
JR環状線「森ノ宮」駅 徒歩4分 大阪メトロ中央線・長堀鶴見緑地線「森ノ宮」駅 徒歩5分 大阪メトロ中央線・今里筋線「緑橋」駅 徒歩10分 |
||
| 建物構造 | 鉄筋コンクリート造 10階建て | 所在階 | 5階 |
| 築年 | 1989年 | 取引態様 | 媒介 |
| 設備 | 電気(専用メーター)/都市ガス/水道(専用メーター)/ガス給湯(キッチン、洗面、浴室)/キッチン(ビルトインガスコンロ/独立洗面台/浴室(浴槽無)/トイレ(洋式、普通温水洗浄便座)/浴室とトイレ独立/室内洗濯機置場/エアコン/インターフォン/エレベーター/常時オートロック/宅配ボックス | ||
| 備考 | 募集戸数:1戸/即入居可/西向きバルコニー/駐輪場/敷地内駐車場(申込時は空き確認要/【平面】月29,700円(税込))/ペット不可/宿泊施設利用不可/賃貸借保証委託契約必須((株)エポスカード。初回保証料:月額総賃料の30%(法人40%)以降月次保証料:月額総賃料の0.7%(大手法人は敷金賃料1ヵ月))/指定火災保険必須/退去時クリーニング代:47500円/鍵交換代:27500円/リノベーション設計施工:アートアンドクラフト(2025年12月) | ||
| 情報修正日時 | 2025年12月22日 | 情報更新予定日 | 2026年4月10日 |
〒530-0043 大阪市北区天満2丁目6-20 Tel 06-6443-1350
宅建業免許番号:大阪府知事(6)第46315号
あなたにおすすめの物件


