|
|
|
||||||||||||||||||||
始まりはミニビルから |
||||||||||||||||||||||
|
||||||||||||||||||||||
|
||||||||||||||||||||||
|
||||||||||||||||||||||
|
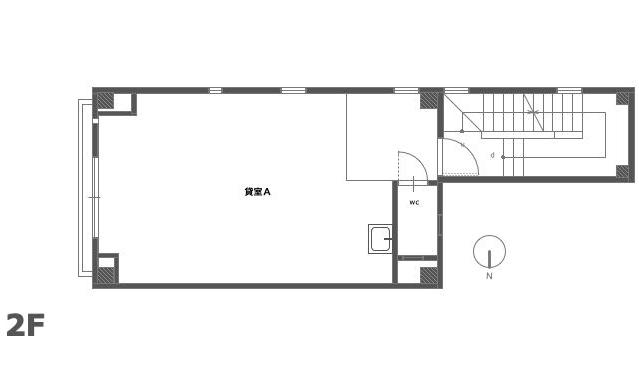
"何をするにも初めが肝心"という言葉があるように、何かを始めるときは、その一歩目が大切。お気に入りの場所・空間でこじんまりと始めたい方にオススメな物件を見つけました。 靱公園周辺を中心にカフェなどの飲食店や雑貨屋、デザイン事務所が集積する京町堀エリア。その一角に建つミニビルの2階部分が募集中です。 小さくとも堂々としたファサードに、ポツンと愛らしい黄色い扉。その扉を開けて、階段で2階に登ると1フロア1戸の独立した区画にたどりつきます。 そこらへんの事務所とは一風違った板張りの内装。木質の温かみの中で上機嫌に作業できそうな空間になっています。玄関の広めの土間スペースもポイントで、ちょっとした作業なんかにも使えそう。 1Fにはアップルパイの店が入居していて、疲れた時には甘いものの補充ができるかと。同じビルにスイーツの店が入っているのはテンションが上がります。 大手オンラインストアがガレージから始まったのであれば、あなたはミニビルから!?普通のオフィスビルじゃしっくりこない!という方にオススメです。 ※記載の賃料、礼金は税別 ※水道費は賃料に含みます。 ※窓台は使用不可。 ※室内禁煙 |
![]() |
|
| 靱公園近くのミニビルの2F部分。 |
|
| 玄関に広めの土間、気兼ねなく使える。 |
|
| 1フロア1戸10坪の独立性。 |
|
| 1-2人出の利用に良さそうなサイズ感です。 |
|
|
| 賃料 | 9万円 | 建物面積 | 30.30㎡ |
| 敷金 | 1ヶ月 | 礼金 | 2ヶ月 |
| 償却 | なし | 管理費 | 賃料に含む |
| 所在地 | 大阪市西区京町堀1丁目 | ||
| 交通 |
大阪メトロ四つ橋線「肥後橋」駅 徒歩4分 大阪メトロ御堂筋線・中央線「本町」駅 徒歩7分 |
||
| 建物構造 | 鉄骨造 6階建て | 所在階 | 2階 |
| 築年 | 1988年 | 取引態様 | 媒介 |
| 設備 | 電気/水道(使用料は賃料に含む)/専用流し台/専用洗面台/専用トイレ(洋式、温水洗浄便座)/エアコン/モニター付インターフォン/エレベーター無し/常時オートロック※エアコン、温水洗浄便座は残置物につき賃貸人は性能保証を負いません | ||
| 備考 | 即入居可/記載の賃料、礼金は税別/東向き主要採光窓/駐輪場/24時間事務所使用可/連帯保証人必須/賃貸借保証委託契約必須(全保連株式会社。初回保証委託料:総賃料の100%、年間保証委託料:10,000円/1年)/火災保険必須/鍵交換代:25,000円(税込)*鍵交換は任意 | ||
| 情報修正日時 | 2025年12月12日 | 情報更新予定日 | 2025年12月27日 |
〒530-0043 大阪市北区天満2丁目6-20 Tel 06-6443-1350
宅建業免許番号:大阪府知事(6)第46315号
あなたにおすすめの物件


