|
|
|||||||||||||||||||
ゆるく、柔らかく、自分らしく。 |
||||||||||||||||||||
|
||||||||||||||||||||
|
||||||||||||||||||||
|
||||||||||||||||||||
|
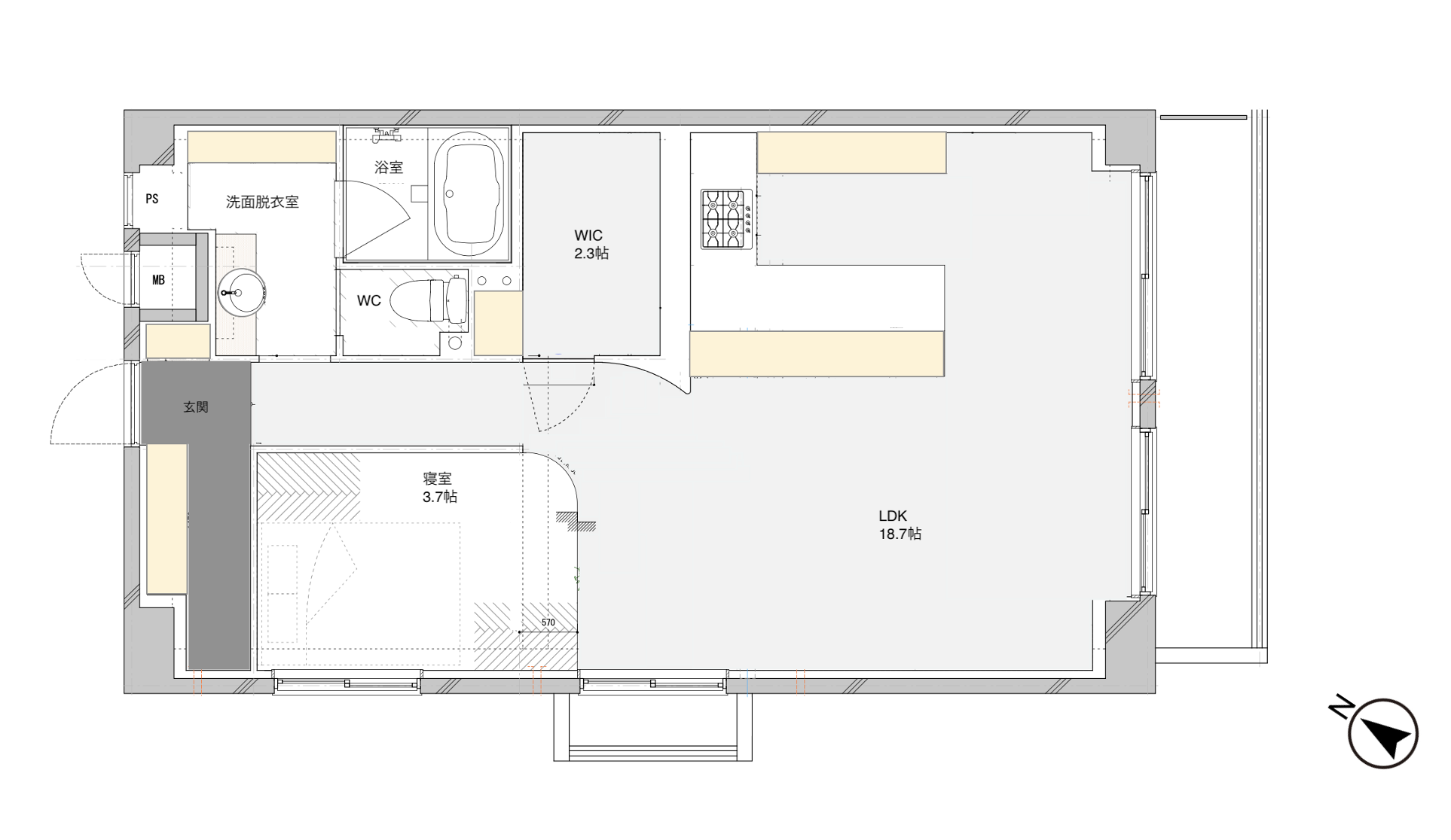
---予約制内覧会を開催します--- 日時:12月20日(土)14:00-、15:00- 参加希望の方は下の「この物件へのお問い合わせ」に代表者氏名、メールアドレス、電話番号の他、「お問い合わせ内容」に1.ご案内時間、2.参加人数、をご記入にてご予約ください。担当者からご連絡差し上げます。 --------------------------------------- ワークライフバランスという言葉に少し違和感を感じています。 そんな一言で自分の人生をまとめないで、って。 もちろんバランスは大事だし仕事もプライベートもどっちも自分の人生の一部。だからこそ住まいに求める条件って自分らしく過ごせる空間が欲しい。 今回ご紹介する物件は、自然体でいられるような柔らかさ、心地良さを感じる物件です。 廊下からリビングへ繋がる壁や寝室との間仕切り床はゆるやかな曲線に。直線だけではつくれない空間の優しさと奥行きを感じられ、視界が丸く切り取られるだけでこんなにも空気が穏やかになるものなんだときっと感じてもらえるはず。 寝室の床はナラフローリングのヘリンボーン模様。 扉ではなくあえて柔らかなカーテンで仕切ることで、部屋全体がひとつながりのような伸びやかさに。開放しているだけでも空間の印象もガラッと変わります。 メインの床はタイルカーペットを敷いていますが、除けばモルタル仕上げ。観葉植物やアートポスターや照明スタンドなど、好みのアイテムがすっと馴染み、「自分の世界観で整えたい」という方にぴったりです。 キッチン横にはカウンターテーブルが設えられているので、仕事前のサッとした朝食にも、夜の一人時間の晩酌にも、友人を招いてのホームパーティーにもちょうどいいサイズ感。気取らず自分らしさを無理なく叶えてくれる場所です。 最寄り駅はJR環状線「桜ノ宮」駅から徒歩5分。 大阪の主要エリアへ軽やかにアクセスできて、通勤でも休日のお出かけでもストレスのないロケーション。都心なのに物件のすぐ側には大川が流れ、朝や夕方の散策がとても気持ちいい立地です。 住まいというのは、ただ便利であればいいわけじゃない。 “自然体の自分でいられるか”って、実はとても大きいと思います。 ゆるく、柔らかく仕上げられた空間はきっと自分らしさを大切に暮らす事の出来る住まいになると思います。 *居住中の為ご案内には日時調整が必要になります (引き渡しは2026年3月以降で相談) *管理費・修繕積立金等の月額合計:22,980円 *月々返済71,000円台 ~(2,580万円借入、借入期間35年、元利均等返済、金利0.9%の場合) *売主の契約不適合責任免責 *写真の家具、小物は撤去します *堀川小学校区、北稜中学校区 |
![]() |
|
| 寝室は壁ではなくカーテンで間仕切る仕様 |
|
| 廊下からリビングへ繋がる壁もゆるやかなカーブで空間を表現。 |
|
| 壁面や天井は白塗装、明るい室内です。 |
|
| キッチンには造作カウンターを。一人でも、友人を招いてホームパーティーにも重宝します。 |
|
|
| >>大きな地図で見る  |
| 価格 | 2,580万円 | 専有面積 | 56.18㎡ |
| 管理費 | 10,940円 | 修繕積立金 | 12,040円 |
| 所在地 | 大阪市北区天満橋2丁目 | ||
| 交通 |
JR環状線「桜ノ宮」駅 徒歩5分 JR環状線「天満」駅 徒歩7分 大阪メトロ堺筋線「扇町駅」駅 徒歩8分 |
||
| 建物構造 | 鉄骨鉄筋コンクリート造 13階建て | 所在階 | 11階 |
| 築年 | 1978年 | 土地権利 | 所有権 |
| 面積 | 都市計画 | 市街化区域 | |
| 用途地域 | 商業地域/準工業地域 | 建蔽率/容積率 | 60%/300% |
| その他費用 | 取引態様 | 媒介 | |
| 設備 | 電気/都市ガス/水道/ガス給湯(キッチン、洗面、浴室)/キッチン(ビルトインガスコンロ魚焼グリル付き、食洗機)/独立洗面台/浴室(ユニットバス、追焚なし)/トイレ(洋式、温水洗浄便座)/浴室とトイレ独立/室内洗濯機置場/モニター付インターフォン/エレベーター ※売主は設備の性能保証を負いません | ||
| 備考 | ペット不可/分譲会社:帝⼈殖産株式会社/施工会社:株式会社⻑⾕⼯コーポレーション/管理会社:株式会社東急コミュニティー/管理形態:委託管理(日勤)/総戸数:95戸/現況:居住中/引渡時期:相談 2026年3月以降/記載の面積は壁芯実測面積/南向きバルコニー/駐輪場(1,200円/年)/堀川小学校区、北陵中学校区 | ||
| 情報修正日時 | 2025年11月22日 | 情報更新予定日 | 2025年12月27日 |
〒530-0043 大阪市北区天満2丁目6-20 Tel 06-6443-1350
宅建業免許番号:大阪府知事(6)第46315号
あなたにおすすめの物件


