|
|
|||||||||||||||||||||
(きっと)ご加護付きガレージハウス |
||||||||||||||||||||||
|
||||||||||||||||||||||
|
||||||||||||||||||||||
|
||||||||||||||||||||||
|
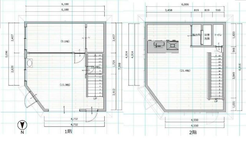
なんともご利益がありそうな物件に東大阪で出会いました。 今回ご紹介するのは、立派なクスノキを御神木とする神社が目と鼻の先にある物件。なんでもこのクスノキ、東大阪市指定天然記念物なんだとか。とても立派なその姿にパワーを感じます。樹齢は750年ほど! この地の歴史を今もなお、じっと見守り続けています。 この物件の屋上からは、そんなクスノキを望むことができるのです。狭すぎず広すぎない屋上は、家庭菜園を楽しんだり、親しい人とバーベキューをするのにぴったり。屋上でのそんな豊かな営みもまた、このクスノキが見守ってくれるのです。 神社ビューが楽しめるのは屋上からだけではありません。20帖超のLDK、横に細長い開口の先の視界は、木々の緑と立派な社で埋め尽くされています。この部屋の少ない開口面積は、この風景を切り取り、際立たせるためにあえてそうなっているのかも。緑の映える白が基調のすっきりとした生活空間、水回りもすっきり綺麗。 そしてもう一つ、魅力ポイントが。 それは、ここがガレージハウスであること。 1階に車2台分駐車可能なガレージを内包しています。もちろんガレージとして利用してもいいですし、事務所や倉庫としての利用も可能です。1階にも洗面やトイレがあるので、来客時でも安心。駐車スペースより奥、ガラスで仕切られた空間は、さながらショーケースのよう。エアコンがついていますので、仕事スペースにうってつけです。 東大阪の落ち着いた住宅地、さらに神社の目の前ということで研ぎ澄まされた雰囲気が漂っています。クスノキと共にじっくり年月を重ねたい方をお待ちしています。 ちなみに2軒隣には雰囲気抜群の団子屋があります。5本入りを購入しましたがおいしくてあっという間でした、、、。ここに住めば、いつでも食べれるなんて!いい景色は美味しいおやつと共に楽しみたい、そんな欲求も満たしてくれます。 *住居兼事務所、倉庫利用可 *賃貸借保証委託契約必須 |
![]() |
|
| カウンターキッチンでゆるりと空間を仕切る。 |
|
| 広々システムキッチン。 |
|
| リビングには天井ビルトイン形エアコン。 |
|
| 屋上へ上がる階段は左奥に。 |
|
|
| 賃料 | 15万円 | 専有面積 | 90.42㎡ |
| 敷金 | なし | 礼金 | 300,000円 |
| 償却 | なし | 管理費 | なし |
| 所在地 | 大阪府東大阪市御厨1丁目 | ||
| 交通 | 近鉄奈良線「河内小阪」駅 徒歩16分 | ||
| 建物構造 | 鉄骨造 2階建て | 所在階 | 1,2階 |
| 築年 | 1979年 | 取引態様 | 媒介 |
| 設備 | 電気/都市ガス/水道/ガス給湯/キッチン(ビルトインIHクッキングヒーター)/浴室一体洗面台/浴室(ユニットバス、追焚有)/トイレ(洋式、温水洗浄便座)/浴室とトイレ独立/室内洗濯機置場/エアコン/モニター付インターフォン | ||
| 備考 | 現状有姿で引渡し/引渡し時期相談/ルーフテラス/敷地内駐車場(屋根有、シャッター有)/ペット不可/住居兼事務所利用可(業種要確認。看板設置は表札サイズまで。事務所登記可。賃料、共益費、礼金の半金に消費税)/宿泊施設利用不可/室内禁煙/火災保険必須(20,000円/2年)/賃貸借保証委託契約必須 | ||
| 情報修正日時 | 2025年9月26日 | 情報更新予定日 | 2025年12月1日 |
〒530-0043 大阪市北区天満2丁目6-20 Tel 06-6443-1350
宅建業免許番号:大阪府知事(6)第46315号
あなたにおすすめの物件


